HELIOS Amper-Klinik Dachau – Zielplanung
Bauherr:
Amper Kliniken AG
Krankenhausstraße 15
85221 Dachau
Kenndaten:
435 Betten
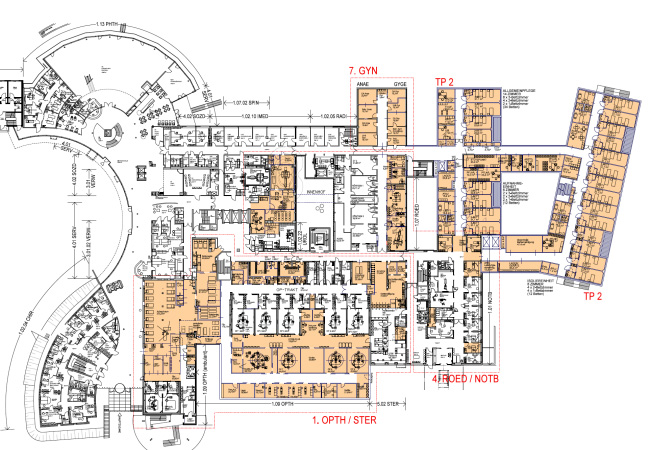
Nutzfläche 13.800 m²
Leistungsprofil:
Zielplanung mit Analyse des Gebäudebestandes, Aufzeigen des Sanierungsrückstandes, Neustrukturierung des Hauses, Analyse der funktionalen und betrieblichen Anforderungen, Aufstellung des RFP, Aufstellung Betriebs- und Logistikkonzept, Darstellung der innerbetriebl. Funktionsabläufe, funktionaler und räumlicher Lösungsvorschlag mit Darstellung von Alternativen, Wirtschaftlichkeitsmodelle, Grobkostenschätzung
Nutzungen:
Sanierung und Erweiterung
Operation, Notaufnahme, LHKM, Allgemeinpflege, Intensivpflege, Serviceflächen, Allgemeinpflege, Zentralsterilisation, Logistik
Bearbeitungszeit:
2012




