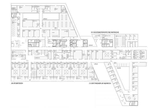
Neubau Baufeld West am Universitätsklinikum Köln
Auslober:
Universitätsklinikum Köln (AöR)
Rahmendaten:
Investitionssumme ca. 135 Mio Euro
Nutzfläche 35.464 qm
BGF 85.395 qm
Leistungsprofil:
Generalplanung, Objektplanung, Freianlagen, Medizintechnik, Technische Gebäudeausstattung
Nutzungen:
UKK mit 1385 Planbetten, Konzentration der Kinder- und Frauenheilkunde in einem Neubau, Erweiterung des OP-Zentrums um 21 OP-Säle, Intensivstation, Zentrale Notaufnahme inkl. Notfall-Radiologie, Hubschrauberlandeplatz, Ambulanzen.










