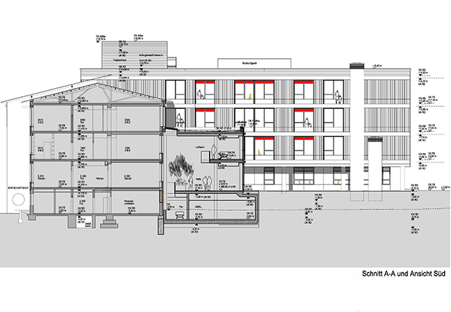
Kreisklinik Mühldorf / Inn – Pflegeneubau
Bauherr:
Kreiskliniken des Landkreises Mühldorf a. Inn GmbH
Krankenhausstraße 1
84453 Mühldorf a. Inn
Kenndaten:
Bausumme 36 Mio Euro
Nutzfläche 4.500 m²
Leistungsprofil:
Zielplanung, Objektplanung LPH 1-9, Medizintechnikplanung
Nutzungen:
Allgemeinpflege, Entbindung, Verwaltung, Serviceeinrichtungen





